ROCAFORT
14 viviendas unifamiliares únicas
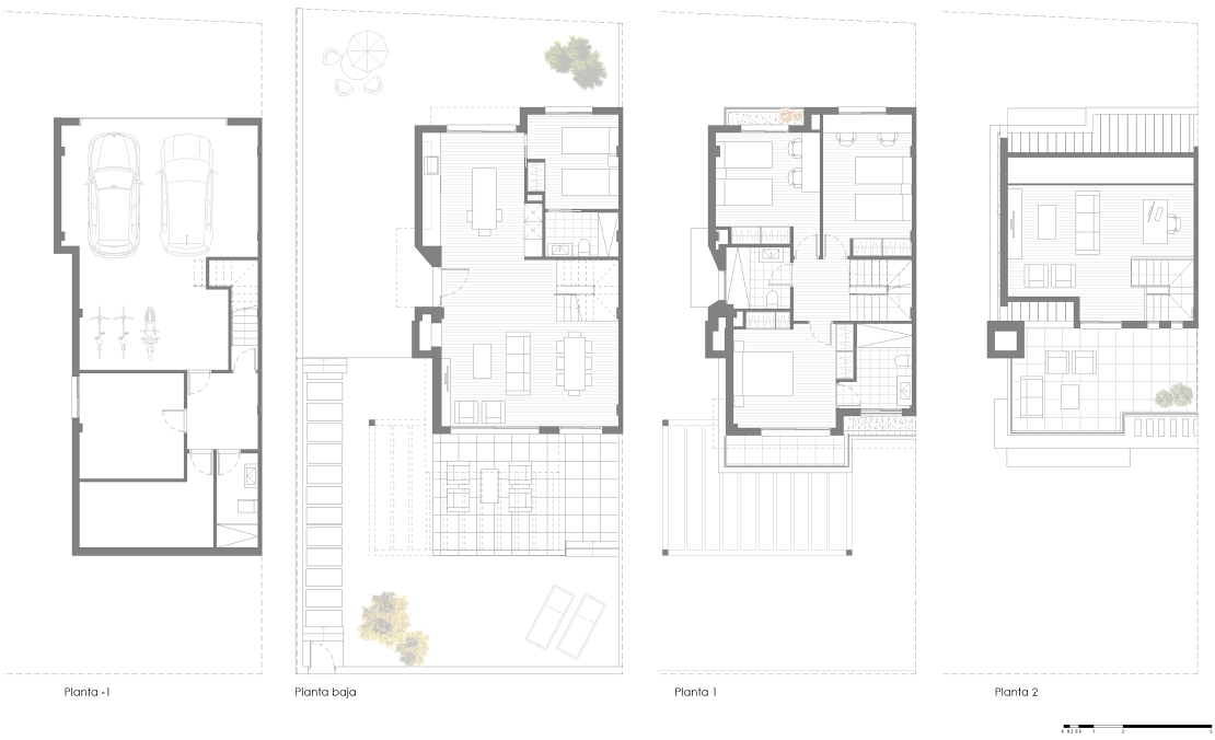
14 exclusivas viviendas con jardín privado, 5 dormitorios más buhardilla, con sótano-garaje privado con entrada comunitaria y piscina opcional. Ahora es el momento para empezar a vivir como siempre habías deseado, en un hogar donde confluyen las mejores calidades en un espacio amplio.Disfruta de las mejores experiencias con los tuyos y poder conseguir tu vivienda a tu gusto. Personalizamos tu vivienda… Solicita el catálogo de extras.
Residencial Rocafort Careco, un espacio tranquilo inmerso en la naturaleza. A pocos minutos de Valencia podrás adentrarte y recorrer el pulmón verde de la huerta valenciana. Además, dispondrás de todo para tu comodidad y la de los tuyos: transportes públicos, colegios, servicios sanitarios, instalaciones deportivas, zonas de ocio, grandes superficies etc. También muy cerca de ti, encontrarás atractivos comercios en Rocafort así como de las localidades vecinas.
Careco es una empresa valenciana con más de 70 años de experiencia, diseñando, construyendo, promoviendo y vendiendo edificios residenciales. Ofrecemos proyectos exclusivos con las máximas calidades. Además, Careco se ha especializado en dar las máximas soluciones y posibilidades para particularizar tu vivienda, consiguiendo así que tu hogar sea como siempre habías deseado.
CARECO, CALIDAD Y CONFORT
En CARECO llevamos más de 70 años diseñando, construyendo, promoviendo y vendiendo edificios residenciales.
Construimos viviendas con calidad, en las que se respira aire saludable, viviendas que proporcionan el máximo confort con el mínimo consumo de energía.
Calificación Energética “A”
Las viviendas tienen calificación energética A, lo que supone una disminución de emisiones de CO2 y una reducción significativa de la demanda energética de la vivienda y por tanto un ahorro en tu factura de calefacción, agua caliente y A/C.
Las viviendas disponen de:
VEN A VIVIR A UN ENTORNO RODEADO DE NATURALEZA MUY CERCA DE VALENCIA
Residencial Rocafort Careco, un espacio tranquilo inmerso en la naturaleza. A pocos minutos de Valencia podrás adentrarte y recorrer el pulmón verde de la huerta valenciana.
Además, dispondrás de todo para tu comodidad y la de los tuyos; transportes públicos, colegios, servicios sanitarios, instalaciones deportivas, zonas de ocio, grandes superficies etc. También muy cerca de ti, encontrarás atractivos comercios en Rocafort así como de las localidades vecinas.
Distancias aproximadas
| Colegios | 10 en 4 km |
| Centros Deportivos | 4 en 3 km |
| Metro/Bus | 1 km |
| Valencia | 7 km |
| Hospitales | 6 km |
| Aeropuerto | 8 km |
| Puerto | 20 km |
| Playa | 18 km |
| Heron City | 3 km |
| Parque Tecnológico | 4 km |
| By Pass | 2 km |
| CV-35 | 3 km |